A petrozsényi régi vasúti víztorony és szivattyúház
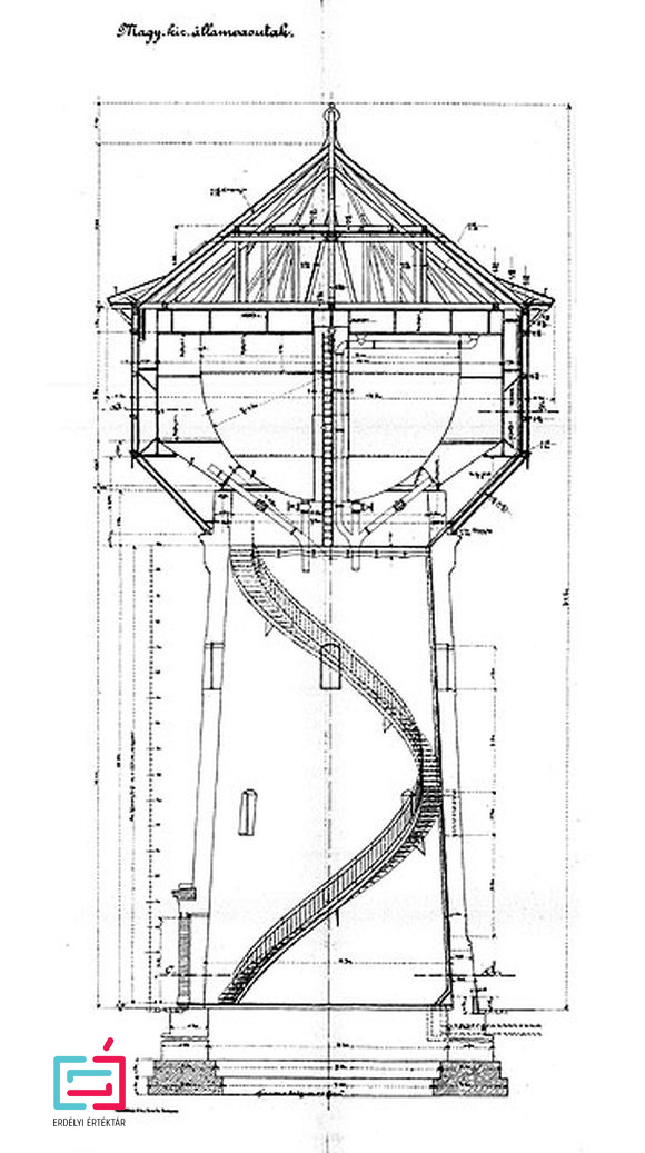
A torony magassága 35 m. A fal vastagsága az alapzatnál 1 m. Az egész építmény téglából van megépítve, a torony nem vakolt kivitelezésű így a vöröstégla-torony nagyon látványos. A tartályokat faszerkezet veszi körül. A fa valamikor zöld színűre volt festve, most már csak barna-fekete a kosztol. A tető faszerkezetű és bádog lemez fedi. Bádog lemez is zöldre volt festve mostanára már csak szürke .
A torony két 180 köbméteres víztartályt tartalmaz. A tartályok érdekessége hogy nem hegesztetek, hanem ahogy abban a korban volt szokásos, szegecselve vannak. A tartályokat a torony mellett levő patakból töltötték fel. Itt a patakon egy kis vízgyűjtő volt, aminek romjai még most is látszanak. A tartályok felett egy kör alakú padlózat van. A víztorony bejárata egy nagy faajtó, amelyen üvegberakás látható. Az épületen felfele a belső csigalépcső menten kis ablakok találhatók.
Az első gőzmozdony vontatta szerelvény Piski es Petrozsény között 1870. augusztus 28-án indult és három óra alatt tette meg a távolságot.
A torony 1900-as évek elején épült fel.
Guță, Daniel
2020 Calea ferată a cărbunelui, veche de 150 de ani. Povestea „dracului de foc” din Valea Jiului. Adevărul. 2020. júl. 27.
Horváth Ferenc
2001 Az erdélyi vasútépítés előzményei. Az Első Erdélyi Vasút Arad–Gyulafehérvár fővonala és Piski–Petrozsény szárnyvonala. Műszaki Szemle 15. 5–9.
Horváth Ferenc – Kubinszki Mihály
2002 Az erdélyi vasútépítés előzményei. Az Első Erdélyi Vasút Arad–Gyulafehérvár fővonala és Piski–Petrozsény szárnyvonala. Műszaki Szemle 16. 3–6.
Mitrache, Diana
2020 Uitat în istorie, ultimul turn de apă aşteaptă o minune. Cronica Vaii Jiului. 2020. máj. 24.
Tasnádi Tamás
2016 Barangolás Hunyad megye vasútján. Iho.hu. 2016. júl. 17.
(n. n.)
2013 La 100 de ani de la construirea lui, turnul de apă din Depoul CFR ar putea deveni atracţie turistică. Servuspress. 2013. aug. 6.
A több mint száz éves torony még hirdeti a kor nagyszerű mérnöki megoldásait. Erdély területén ez az egyetlen még ilyen típusú épségben megmaradt víztorony és szivattyúház. Már rég nincs használatban. A városba beérve ez a torony fogadja az autóval átutazót és a vonaton érkezőt, szép látvány az út és a vasút jobboldalán. Szépen rendbe hozva a varos turisztikai látványossága lehetne. Az elmúlt több mint 100 év alatt a város mindennapjainak szerves részévé vált. Jelentősége nem csak az ipari víz szolgáltatásában, hanem az építészeti kvalitásaiban is állt. Generációkon keresztül szolgálta a rendezőpályaudvaron áthaladó mozdonyokat. A víztorony es a szivattyúház a rendezőpályaudvar „bejáratánál”, található az úgynevezett Kolónia-negyedben.










